Projektet -> Dizajn Interieri -> Konvikti "Iliria" -> Apartamenti
Projekti: "Apartamenti i Konviktit - Iliria",
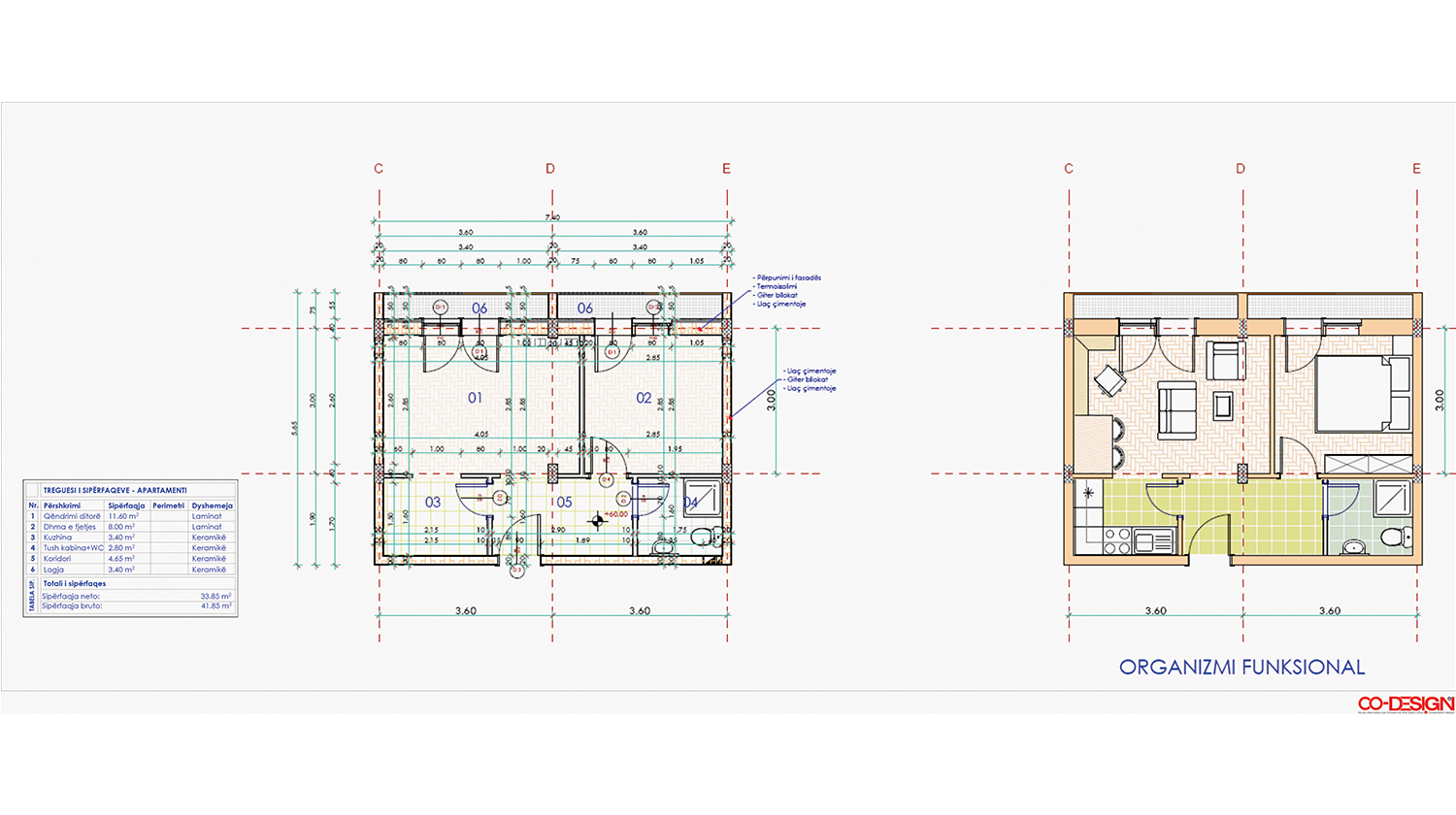
Sipërfaqja: 45 m2
Projektues: Visar Q. Hahxibeqiri & CO-Design
Investitor:Universiteti Iliria

Projekti: "Apartamenti i Konviktit - Iliria",
Sipërfaqja: 45 m2
Projektues: Visar Q. Hahxibeqiri & CO-Design
Investitor:Universiteti Iliria