Projektet -> Dizajn Interieri -> Venaria "Alvera" -> Alvera
Projekti: Alvera
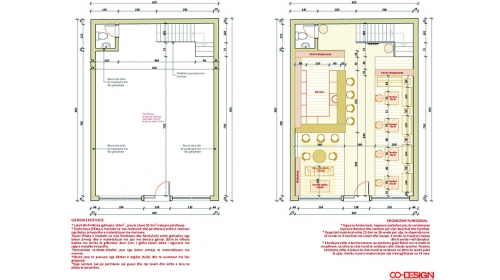
Sipërfaqja: 163 m2
Projektues: Visar Q. Haxhiibeqiri & CO-DESIGN
Investitor:Meti Haxhosaj

Projekti: Alvera
Sipërfaqja: 163 m2
Projektues: Visar Q. Haxhiibeqiri & CO-DESIGN
Investitor:Meti Haxhosaj